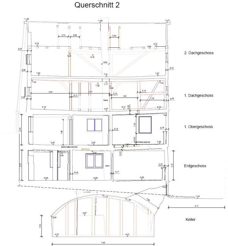
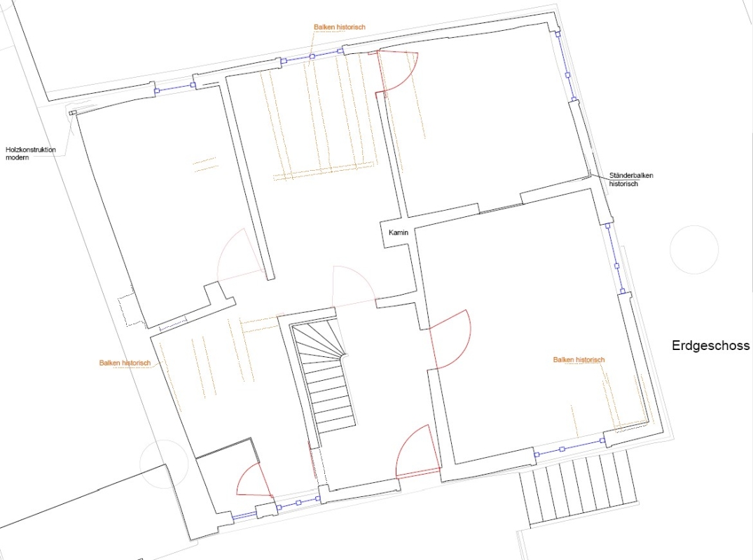
Aufmass eines historischen Gebäudes mit dem Laserscanner. Erstellung von Ansichten, Schnitten und Grundrissen unter besonderer Berücksichtigung und Erfassung historischer Bausubstanz. Die Vermessung erstreckt sich über alle Geschoße, den Keller und dem Außengelände.
Messen,
Architektur und Hochbau,
Denkmalpflege,
Gebäudedoku und Bestandssicherung






