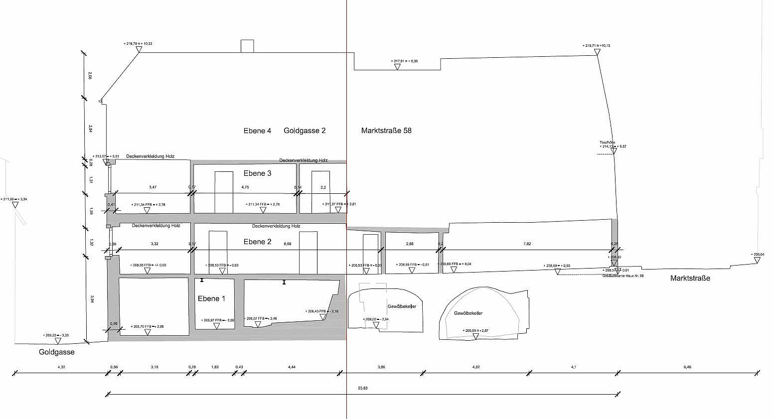
Mittels 3D-Laserscan wird das gesamte Anwesen Goldgasse 2 erfasst, digitalisiert und als räumliche 3D Punktwolke dargestellt (Bild 4 und 5). Diese dient als Grundlage für Umplanung und Sanierung, sowie zur Erstellung "klassischer" Papierpläne und Ansichten. Herausfordernd ist die enge und verwinkelte Bauweise und Aufteilung der Räume vom Gewöbekeller bis in den Spitzboden.






